casa Barbiero - Testa - Valiante
Jelsi,
post inizio XV - ante metà-XX
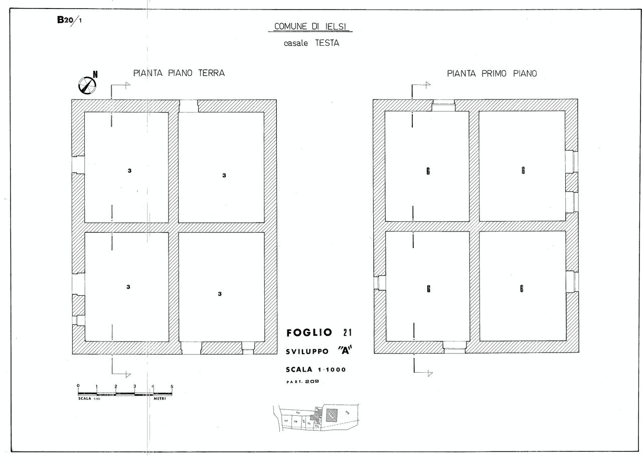
L’edificio a blocco semplice a pianta rettangolare, si sviluppa su due livelli di piano, la muratura è in pietra a vista ed in parte intonacata. I solai sono in legno. La copertura a doppia falda con manto in coppi di laterizio. I due piani non sono comunicanti tra loro ed al livello superiore si accede da una scala esterna in pietra
- OGGETTO casa-rurale
- AMBITO CULTURALE Maestranze Quattrocentesche
- LOCALIZZAZIONE Jelsi (CB) - Molise , ITALIA
- INDIRIZZO Strada Vicinale Parruccia, Jelsi (CB)
- TIPOLOGIA SCHEDA Architettura
-
CONDIZIONE GIURIDICA
proprietà privata
- CODICE DI CATALOGO NAZIONALE 1400076166
- ENTE COMPETENTE PER LA TUTELA Soprintendenza Archeologia, belle arti e paesaggio del Molise
- ENTE SCHEDATORE Soprintendenza Archeologia, belle arti e paesaggio del Molise
- DATA DI COMPILAZIONE 1978
-
DATA DI AGGIORNAMENTO
2019
-
DOCUMENTAZIONE ALLEGATA
scheda di catalogo (1)
-
DOCUMENTAZIONE GRAFICA
planimetria catastale (1)
planimetria catastale (2)
planimetria catastale (3)
planimetria catastale (4)
planimetria catastale (5)
planimetria catastale (6)
- LICENZA METADATI CC-BY 4.0