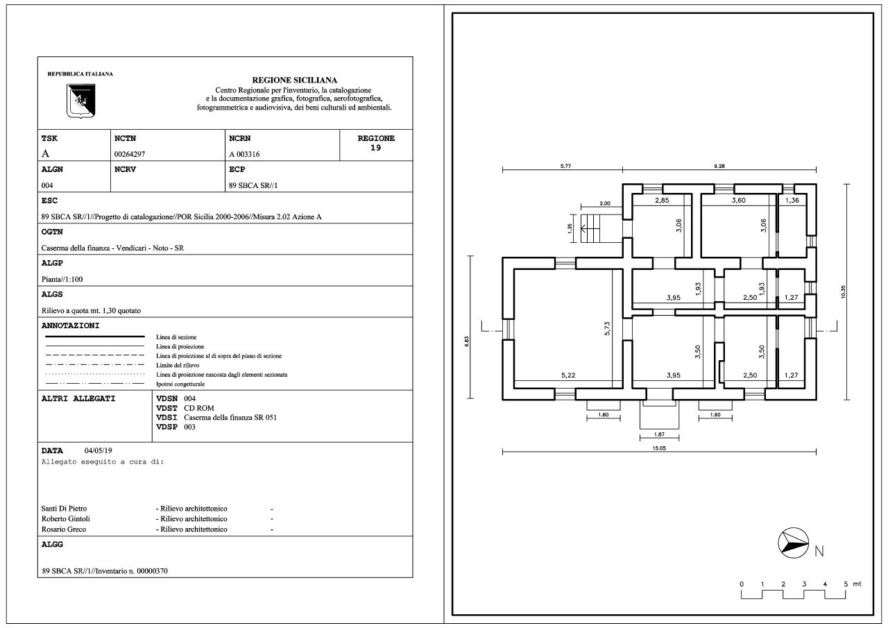
caserma-della finanza
Noto,
1914/06/27 - 1914/06/27
Edificio in muratura continua in blocchi regolari di calcare ammorsata agli angoli e intonacata, con solaio e copertura piani
- OGGETTO caserma-della finanza
- AMBITO CULTURALE Maestranze Locali
- LOCALIZZAZIONE Noto (SR) - Sicilia , ITALIA
- TIPOLOGIA SCHEDA Architettura
-
CONDIZIONE GIURIDICA
proprietà Stato
- CODICE DI CATALOGO NAZIONALE 1900264297
- ENTE COMPETENTE PER LA TUTELA Centro Regionale per l'Inventario e la Catalogazione
- ENTE SCHEDATORE Centro Regionale per l'Inventario e la Catalogazione
- DATA DI COMPILAZIONE 2004
-
DATA DI AGGIORNAMENTO
2021
- LICENZA METADATI CC-BY 4.0