Chiesa di San Rocco
Cercemaggiore,
- 1805/00/00 ante
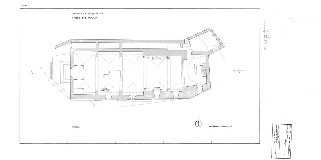
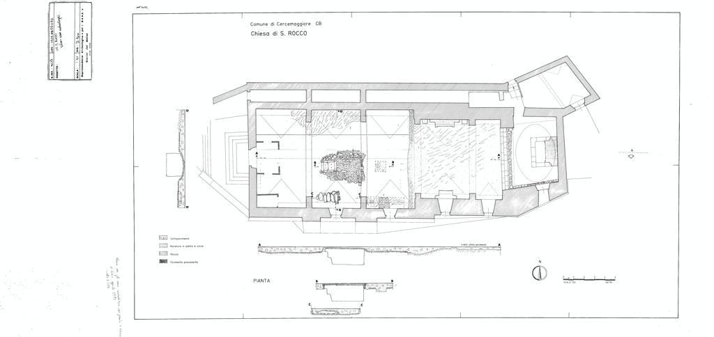
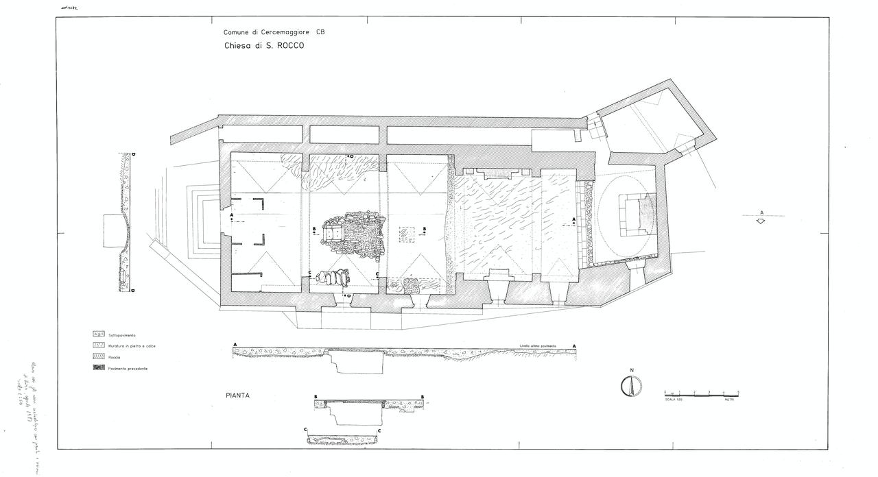
La chiesa, longitudinale, è a navata unica. Si presenta parzialmente interrata sul versante settentrionale con ampia scalinata sul prospetto principale. Ha struttura portante in muratura di pietra con conci posti a filari irregolari.Il prospetto principale ha portale in pietra e finestra rettangolare in asse. il prospetto si completa con campanile a vela
- OGGETTO chiesa-sussidiaria
- AMBITO CULTURALE Settecentesca
- LOCALIZZAZIONE Cercemaggiore (CB) - Molise , ITALIA
- INDIRIZZO Piazza Garibaldi, Cercemaggiore (CB)
- TIPOLOGIA SCHEDA Architettura
-
CONDIZIONE GIURIDICA
proprietà Ente religioso cattolico
- CODICE DI CATALOGO NAZIONALE 1400075067
- ENTE COMPETENTE PER LA TUTELA Soprintendenza per i Beni Architettonici e Paesaggistici del Molise
- ENTE SCHEDATORE Soprintendenza per i Beni Architettonici e Paesaggistici del Molise
- DATA DI COMPILAZIONE 1990
-
DATA DI AGGIORNAMENTO
2017
-
DOCUMENTAZIONE ALLEGATA
scheda catalogo (1)
-
DOCUMENTAZIONE GRAFICA
planimetria catastale (1)
planimetria catastale (2)
planimetria catastale (3)
planimetria catastale (4)
- LICENZA METADATI CC-BY 4.0