Casale Mariano-Martino
Campolieto,
- 1935/00/00 ante
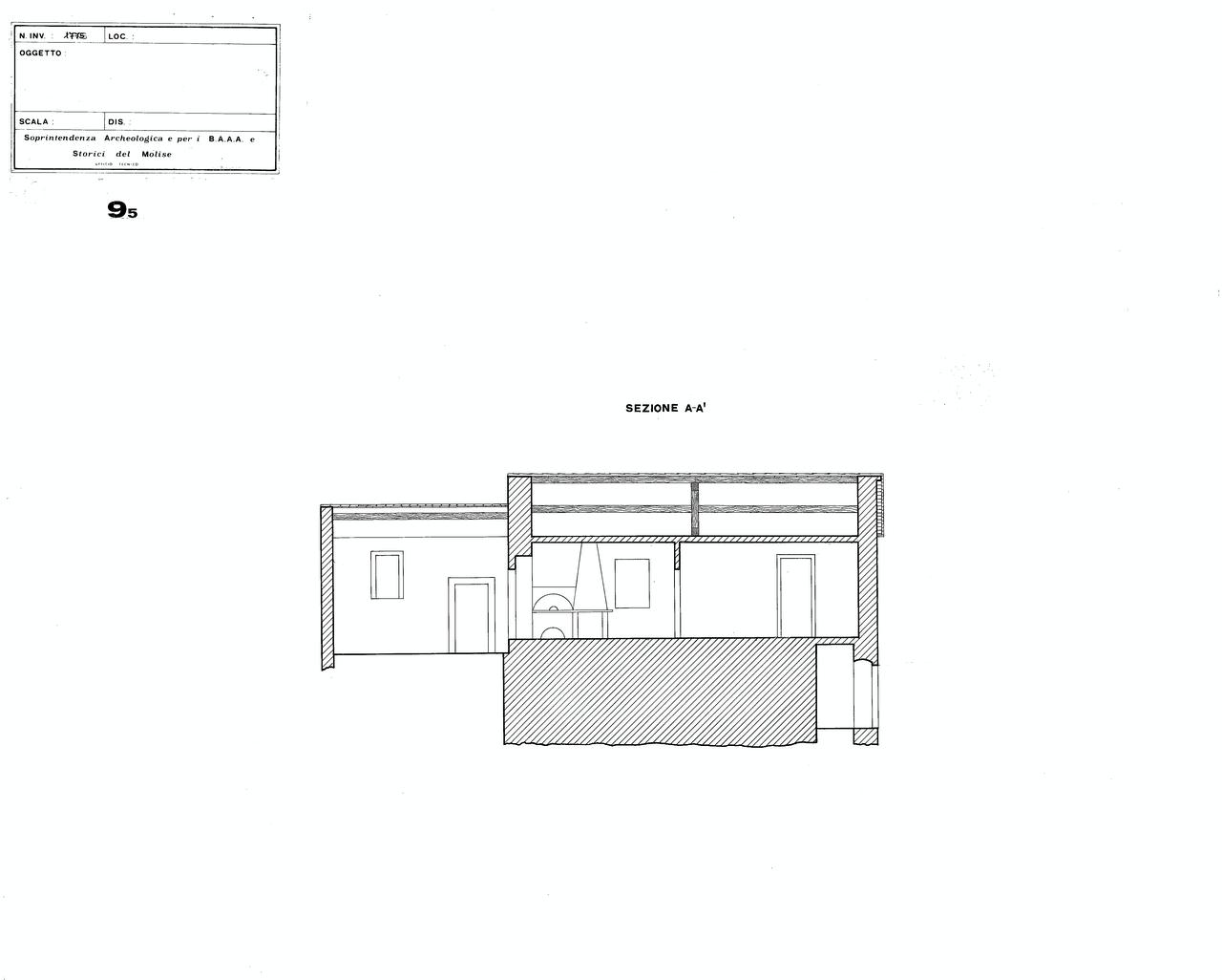
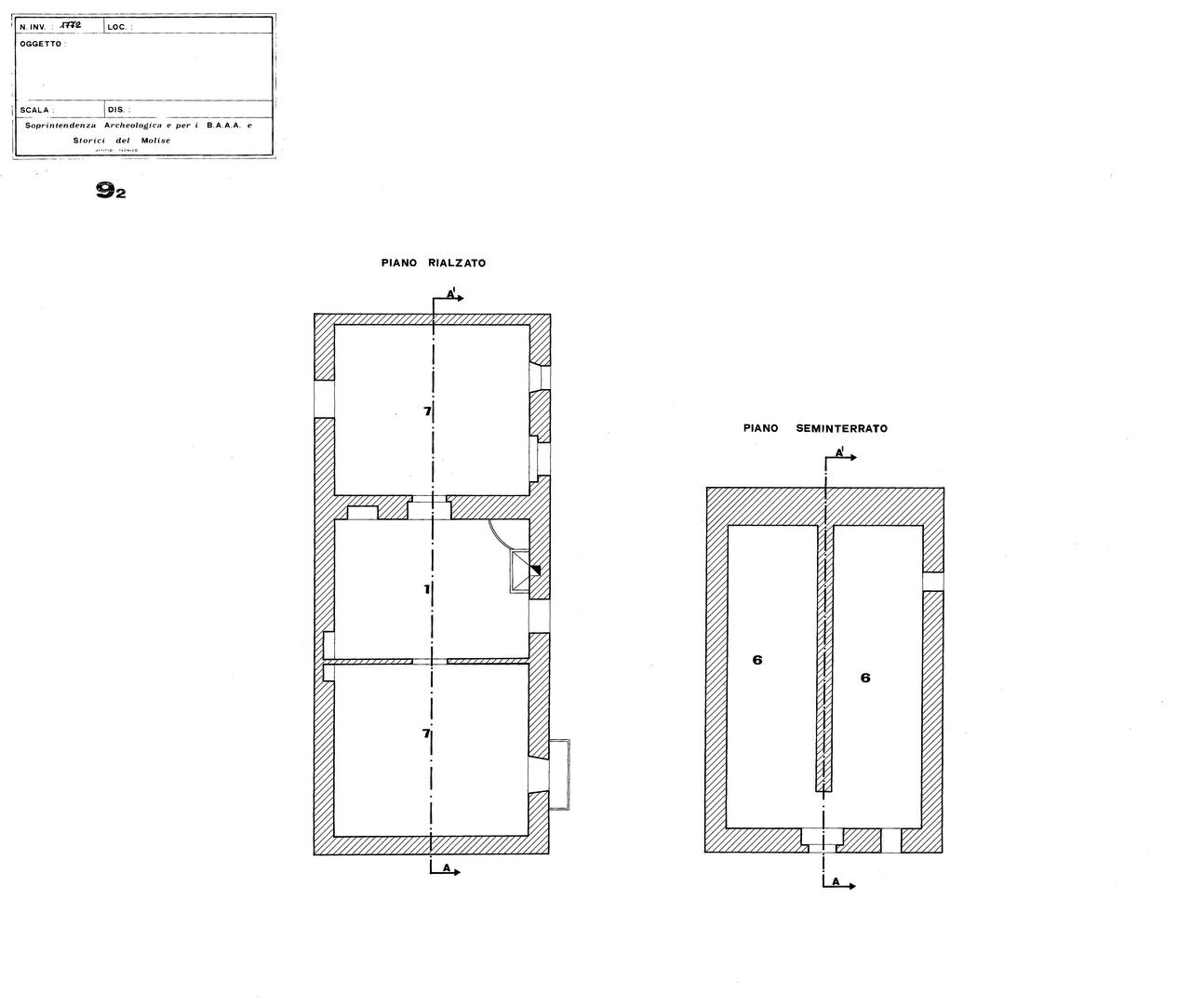
L’edificio, isolato, sorge su un terreno in pendio ed è inserito in una vallata. E’ a blocco semplice su due livelli ed è sprovvisto di scale di collegamento. La muratura portante è in pietra a corsi irregolari. Le facciate terminano con un cornicione a romanella
- OGGETTO casa-rurale
- AMBITO CULTURALE Maestranze Ottocentesche
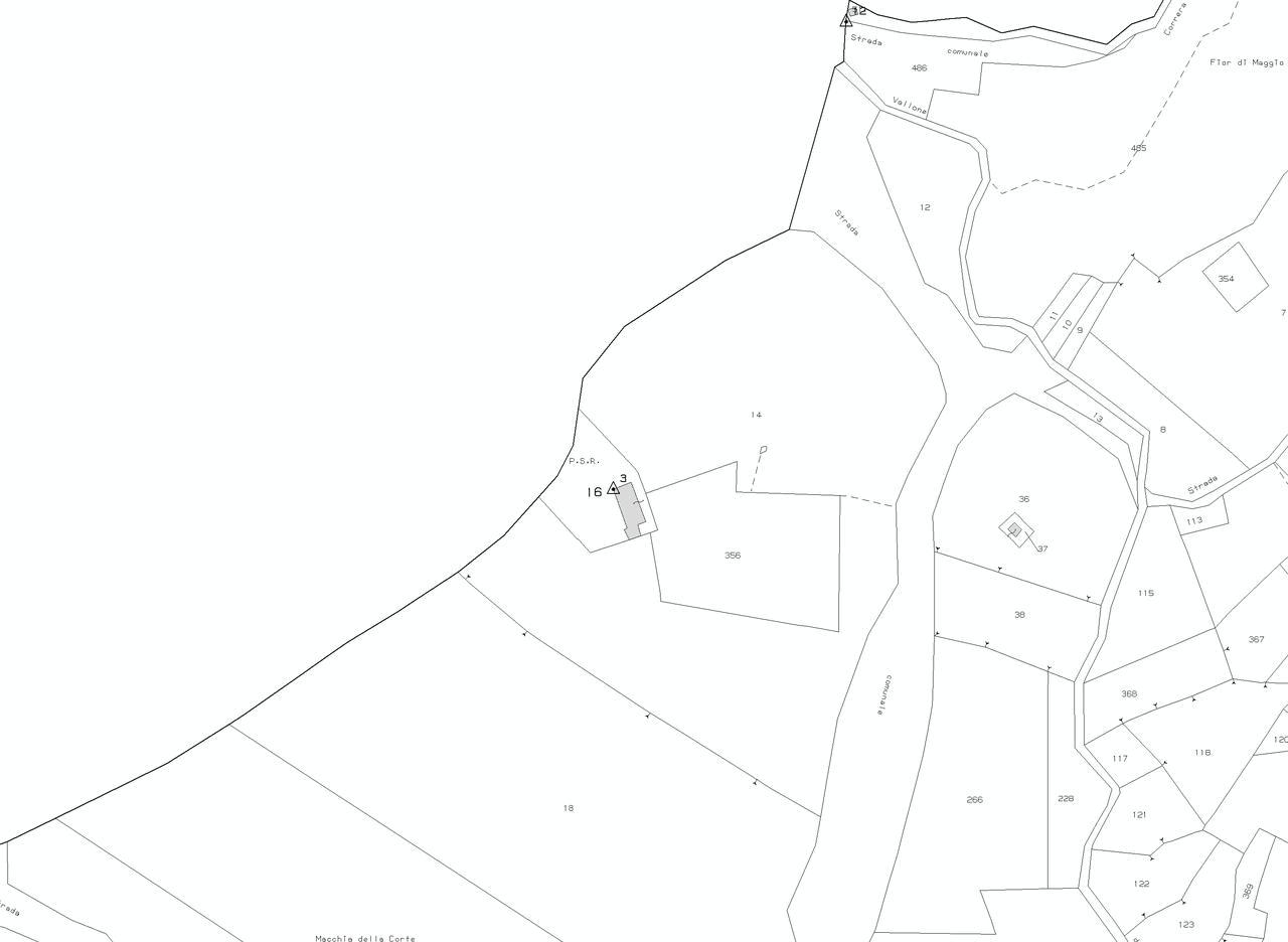
- LOCALIZZAZIONE Campolieto (CB) - Molise , ITALIA
- INDIRIZZO Contrada Macchia della Corte, Campolieto (CB)
- TIPOLOGIA SCHEDA Architettura
-
CONDIZIONE GIURIDICA
proprietà privata
- CODICE DI CATALOGO NAZIONALE 1400075877
- ENTE COMPETENTE PER LA TUTELA Soprintendenza per i Beni Architettonici e Paesaggistici del Molise
- ENTE SCHEDATORE Soprintendenza per i Beni Architettonici e Paesaggistici del Molise
- DATA DI COMPILAZIONE 1979
-
DATA DI AGGIORNAMENTO
2017
-
DOCUMENTAZIONE ALLEGATA
scheda di catalogo (1)
-
DOCUMENTAZIONE GRAFICA
planimetria catastale (1)
planimetria catastale (2)
planimetria catastale (3)
planimetria catastale (4)
planimetria catastale (5)
planimetria catastale (6)
planimetria catastale (7)
planimetria catastale (8)
- LICENZA METADATI CC-BY 4.0