Chiesa di San Rocco
Montelongo,
- 2002/10/31 ante
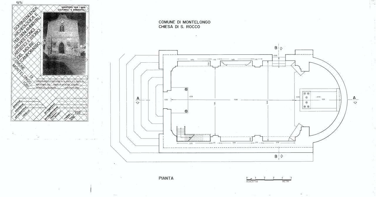
La chiesa ad aula ha il presbiterio rialzato rispetto al piano della stessa. La facciata presenta un ingresso rialzato rispetto al piano stradale, il portale con arco ad ogiva è sormontato da una finestra bifora, al di sopra l’orologio. La copertura è a due falde è all’incrocio delle due falde, sulla facciata un campanile a ventola in ferro con due campane
- OGGETTO chiesa-sussidiaria
- AMBITO CULTURALE Maestranze Cinquecentesche
- LOCALIZZAZIONE Montelongo (CB) - Molise , ITALIA
- INDIRIZZO Via San Rocco, Montelongo (CB)
- TIPOLOGIA SCHEDA Architettura
-
CONDIZIONE GIURIDICA
proprietà Ente religioso cattolico
- CODICE DI CATALOGO NAZIONALE 1400074535
- ENTE COMPETENTE PER LA TUTELA Soprintendenza per i Beni Architettonici e Paesaggistici del Molise
- ENTE SCHEDATORE Soprintendenza per i Beni Architettonici e Paesaggistici del Molise
- DATA DI COMPILAZIONE 1998
-
DATA DI AGGIORNAMENTO
2017
-
DOCUMENTAZIONE ALLEGATA
scheda da campo (1)
scheda da campo (2)
scheda da campo (3)
scheda da campo (4)
scheda da campo (5)
-
DOCUMENTAZIONE GRAFICA
planimetria catastale (1)
planimetria catastale (2)
planimetria catastale (3)
planimetria catastale (4)
planimetria catastale (5)
- LICENZA METADATI CC-BY 4.0