Casa in loc. Villa Raspa 2 (domus, struttura abitativa)
Aquileia,
I-II d.C
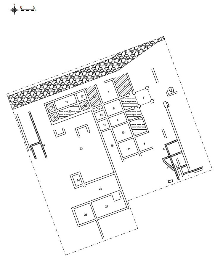
l'abitazione si articola in 27 ambienti che hanno restituito 9 rivestimenti pavimentali (per una descrizione completa e per la bibliografia precedente si veda al sottoparagrafo DO/BIB)
- OGGETTO domus
-
CLASSIFICAZIONE
struttura abitativa
- LOCALIZZAZIONE Aquileia (UD) - Friuli-Venezia Giulia , ITALIA
- INDIRIZZO Via Gemina, Aquileia (UD)
- TIPOLOGIA SCHEDA Monumenti archeologici
-
CONDIZIONE GIURIDICA
proprietà Stato
- CODICE DI CATALOGO NAZIONALE 0600157075
- ENTE COMPETENTE PER LA TUTELA Soprintendenza Archeologia, belle arti e paesaggio del Friuli Venezia Giulia
- ENTE SCHEDATORE Soprintendenza Archeologia, belle arti e paesaggio del Friuli Venezia Giulia
- DATA DI COMPILAZIONE 2017
- LICENZA METADATI CC-BY 4.0