Casale Pistolese
Venafro,
post fine XIX - ante fine-XX
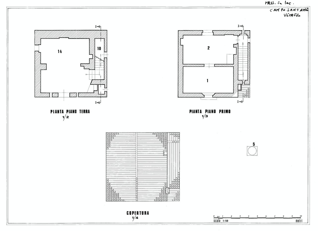
Edificio a blocco di forma rettangolare, con scala interna, con struttura portante in muratura di pietra. L'edificio è di complessivi due livelli fuori terra. La copertura è a doppia falda. All'interno una abitazione e un magazzino
- OGGETTO casale-rustico
- AMBITO CULTURALE Ottocentesca
- LOCALIZZAZIONE Venafro (IS) - Molise , ITALIA
- INDIRIZZO Via Maria Pia di Savoia, Venafro (IS)
- TIPOLOGIA SCHEDA Architettura
-
CONDIZIONE GIURIDICA
proprietà privata
- CODICE DI CATALOGO NAZIONALE 1400002643
- ENTE COMPETENTE PER LA TUTELA Soprintendenza Archeologia, belle arti e paesaggio del Molise
- ENTE SCHEDATORE Soprintendenza per i Beni Architettonici e Paesaggistici del Molise
- DATA DI COMPILAZIONE 1979
-
DATA DI AGGIORNAMENTO
2019
-
DOCUMENTAZIONE ALLEGATA
scheda di catalogo (1)
-
DOCUMENTAZIONE GRAFICA
planimetria catastale (1)
planimetria catastale (2)
planimetria catastale (3)
planimetria catastale (4)
- LICENZA METADATI CC-BY 4.0