casa-residenziale
Venafro,
post fine XVIII - ante inizio-XX
L'edificio si sviluppa su due piani ed un sottotetto. L'impianto planimetrico è irregolare. La muratura è a sacco intonacata. La copertura è a doppio spiovente. Il manto di copertura è in coppi ed embrici
- OGGETTO casa-residenziale
- AMBITO CULTURALE Maestranze Tardo-settecentesche
- LOCALIZZAZIONE Venafro (IS) - Molise , ITALIA
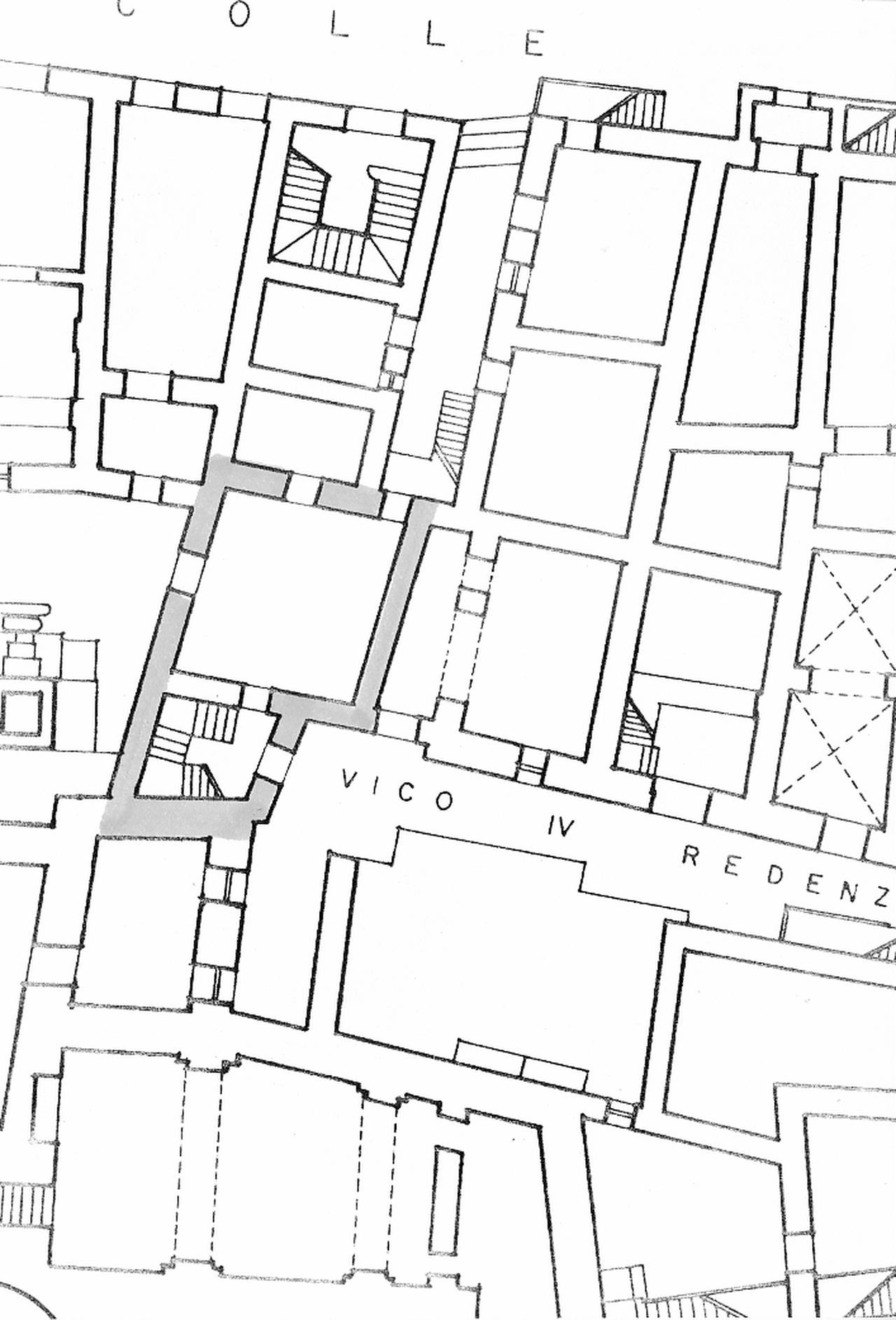
- INDIRIZZO Vico IV Redenzione 10, Venafro (IS)
- TIPOLOGIA SCHEDA Architettura
-
CONDIZIONE GIURIDICA
proprietà privata
- CODICE DI CATALOGO NAZIONALE 1400007299
- ENTE COMPETENTE PER LA TUTELA Soprintendenza per i Beni Architettonici e Paesaggistici del Molise
- ENTE SCHEDATORE Soprintendenza per i Beni Architettonici e Paesaggistici del Molise
- DATA DI COMPILAZIONE 1975
-
DATA DI AGGIORNAMENTO
1981
2018
-
DOCUMENTAZIONE GRAFICA
planimetria catastale (1)
planimetria catastale (2)
- LICENZA METADATI CC-BY 4.0