Villa sede della Fondazione G. B. Massone
Recco,
inizio XX - inizio-XX
- OGGETTO villa
- AMBITO CULTURALE Maestranze Locali
- LOCALIZZAZIONE Recco (GE) - Liguria , ITALIA
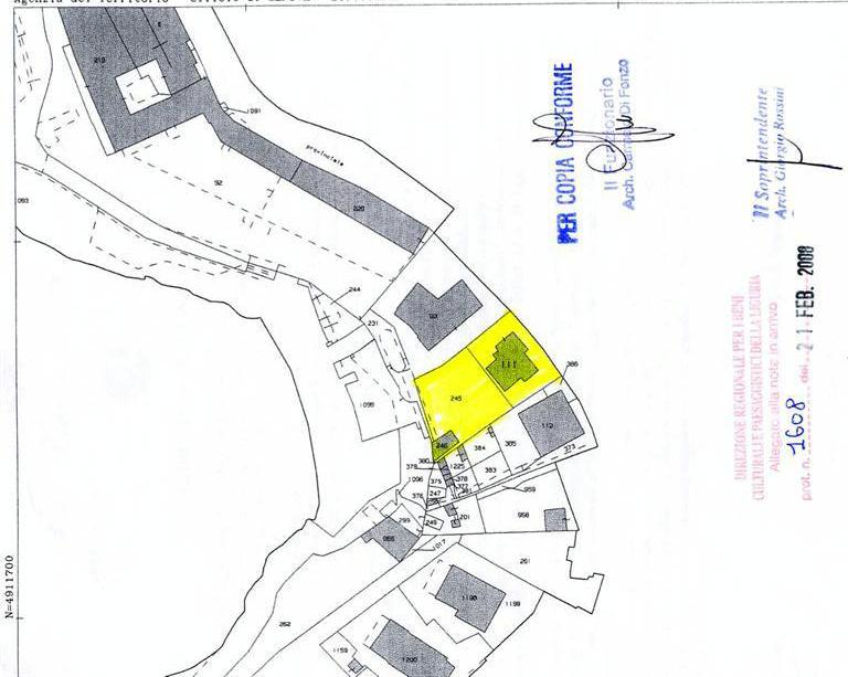
- INDIRIZZO Via Romagneno 8, Recco (GE)
- TIPOLOGIA SCHEDA Architettura
-
CONDIZIONE GIURIDICA
proprietà persona giuridica senza scopo di lucro
- CODICE DI CATALOGO NAZIONALE 0700210427
- ENTE COMPETENTE PER LA TUTELA Soprintendenza Archeologia, belle arti e paesaggio per la città metropolitana di Genova e la provincia di La Spezia
- ENTE SCHEDATORE Soprintendenza per i Beni Architettonici e Paesaggistici della Liguria
- DATA DI COMPILAZIONE 2014
-
DATA DI AGGIORNAMENTO
2015
-
DOCUMENTAZIONE ALLEGATA
copia del provvedimento di tutela (1)
-
DOCUMENTAZIONE GRAFICA
estratto di mappa catastale (1)
- LICENZA METADATI CC-BY 4.0